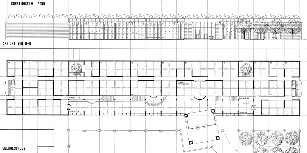
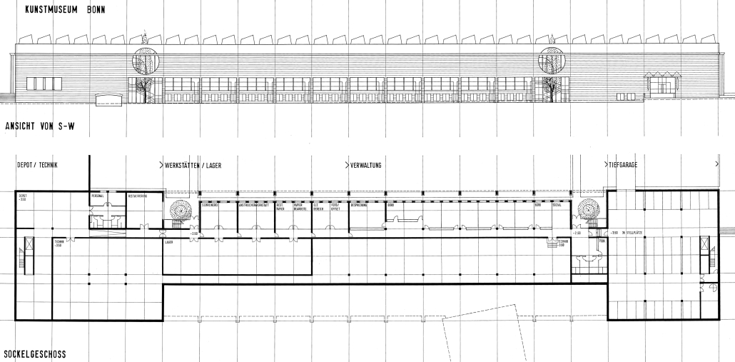
Wettbewerb: Kunstmuseum Bonn Fotos                          Informationen